Εισαγωγή και εφαρμογή προϊόντος

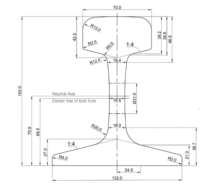
Οι βαρέως ράγες 50kg/m χρησιμοποιούνται κυρίως στους συμβατικούς σιδηρόδρομους, την ανασυγκρότηση των υφιστάμενων γραμμών σταθμών, τις γραμμές υποκαταστημάτων του μετρό κλπ. Η χρήση του υλικού U71MN καθιστά τις ράγες να έχουν καλή αντίσταση και αντοχή στη φθορά και να είναι οικονομικά αποδοτικές. Οι θερμαινόμενες ράγες έλκονται σε πολλαπλά περάσματα μέσω πολλαπλών ελαιοτριβείων. Κατά τη διάρκεια της διαδικασίας κύλισης, οι διατομεακές διαστάσεις των σιδηροτροχιών μειώνονται σταδιακά για να πληρούν τις καθορισμένες απαιτήσεις σχήματος και μεγέθους και η εσωτερική δομή είναι πλήρως ομογενοποιημένη, γεγονός που βελτιώνει τη σταθερότητα και την αντοχή στην τάση των σιδηροτροχιών. Στη συνέχεια, ψύχεται για να αυξήσει τη σκληρότητα των σιδηροτροχιών.
Προδιαγραφές προϊόντων

Εφαρμογή προϊόντος

Εταιρικό προφίλ

Ως εταιρεία εξωτερικού εμπορίου χάλυβα με παγκόσμιο όραμα, η GNEE Rail συνεχίζει να επεκτείνει τη διεθνή αγορά και να δημιουργεί μακροπρόθεσμες σχέσεις συνεργασίας με πελάτες από διάφορες χώρες. Κατανοούμε τις ειδικές ανάγκες των διαφορετικών αγορών και παρέχουμε προσαρμοσμένες λύσεις.
Δημοφιλείς Ετικέτες: Multi-Pass Hot-rolled 50kg/m Κανονική ταχύτητα βαριά σιδηροτροχιά, Κίνα Multi-Pass Hot-rolled 50kg/m Κανονική ταχύτητα βαρέων σιδηροδρομικών κατασκευαστών, προμηθευτές, εργοστάσιο





